
上海盛捷古北服務公寓サービスアパートメント
賃料:2.9~3.6万
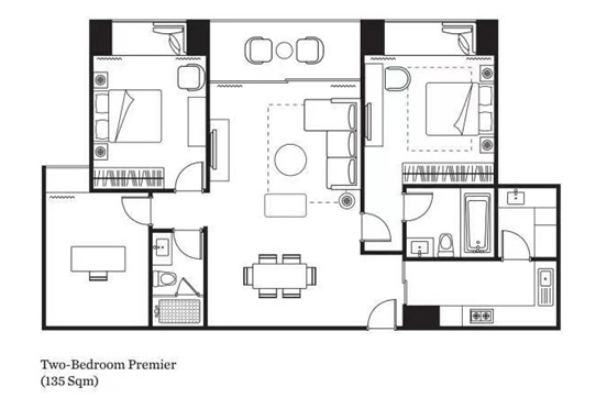
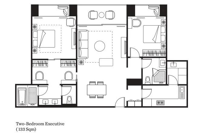
| 完成年:2018 | 間取り:2LDK~3LDK |
| 面積:133~150 ㎡ | 階数: |
| 最寄駅:15号線姚虹路駅 | |
| 住所:姚虹路99弄 | |
細部
『上海盛捷古北服務公寓』は、地下鉄15号線「姚虹路」駅から徒歩10分の位置にある古北エリアのサービスアパートです。シンガポールに本社を置き、世界最大規模の国際的なサービスレジデンスを手がけるアスコット社がプロデュースした1ヶ月以上の長期滞在者向けのブランド「サンセット」の一つで、英語名では、『Somerset Gubei Shanghai』と呼ばれております。
間取りと家賃の紹介:
サービス
・フィットネスクラブの使用権
・週2回の清掃サービス(一回シーツ交換と毛布交換)
・家具家電が備わっております。サービスとして、お部屋のハウスキーピングと施設内のジムが無料でご利用いただけます。
・ 税金、物業管理費、光熱費(10元/M²)、インターネット(共通回線)使用料金込み;
・警備24時間体制で、セキュリティー万全です。日本語/英語対応可;
・24時間修理対応;
部屋の写真:
公共施設:


